Makléř: Kalábová Petra
Telefon: 776 324 ...
E-mail: kalabov ...
Zobrazit celý kontaktTelefon: 776 324 010, 776 324 010
E-mail: kalabovap@seznam.cz
Nemovitost nabízí
Hit Reality
Vranové 1.díl 252, Malá Skála
Zobrazit kontakt na RK
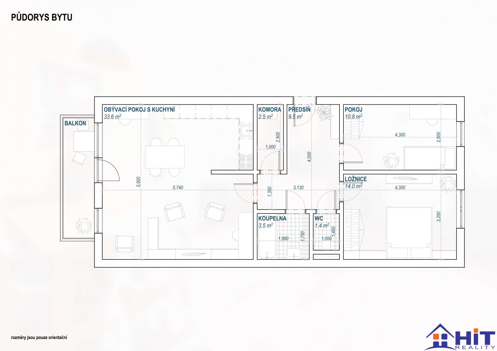
Nabízíme k prodeji moderní, komfortně zařízený byt 3+kk v Liberci v atraktivní rezidenční čtvrti Horní Hanychov na úpatí hory Ještěd, jednoho ze symbolů města. Byt je kompletně zařízený s řadou nadstandardních prvků. Zařízení bytu bylo řešeno podle individuálního architektonického návrhu s důrazem jak na estetiku, tak i s ohledem na praktičnost (fotografie jsou reálné, bez úprav a vizualizace). Součástí prodeje bytu je dále samostatná garáž a prostorná sklepní kóje. Byt je světlý, slunný s podlahovou plochou 79 m2 vč. lodžie o velikosti 5,8 m2 a je součástí menšího bytového komplexu zkolaudovaného v roce 2018. Vizuálně se jedná o stav nového bytu, je neopotřebený, s péčí užívaný pouze jednou dospělou osobou. Byt nabízíme jako plně vybavený a zařízený, lze ho okamžitě užívat k bydlení s veškerým dostupným komfortem (odpadá nutnost rekonstrukce či rozsáhlého stěhování, což znamená úsporu času a peněz). Veškerý nábytek v bytě, skříně, úložné prostory a další zařízení je vestavěné, vyrobené na míru a je tedy jeho pevnou součástí. Zařízení bytu bylo řešeno komplexně na základě architektonického návrhu a nabízí tak jako bonus vysokou estetickou kvalitu. Z nadstandartních komfortních prvků lze zmínit např. osvětlení s nastavitelnými parametry (teplota světla, barva, intenzita), klimatizaci či pevnou počítačovou síť a anténní rozvody v celém bytě. Nadstandartním prvkem jsou i bezfalcové interiérové dveře s podchozí výškou 210 cm. Byt dále nabízí praktickou, kompletně vybavenou kuchyňskou linku. K praktické stránce bytu patří také dostatek úložných prostor, dostatek elektrických zásuvek atd. Náklady na provoz bytu jsou nízké, dům je dobře zateplený, podle PENB spadá aktuálně do kategorie C. Součástí prodeje bytu je dále samostatná garáž s podlahovou plochou 16,4 m2 (zahrnuje i parkovací místo před ní). K bytu náleží také prostorná sklepní kóje s podlahovou plochou 6,6 m2. K bytovému komplexu pak náleží velký společný pozemek o výměře 4.260 m2 s podílem na něm. Na tomto společném pozemku je mj. k dispozici soukromé parkoviště pro majitele bytů a jejich návštěvy a travnatý multifunkční volnočasový prostor. Správu bytového komplexu zajišťuje SVJ (správce SBD PS Liberec). Pokud hledáte byt s pěkným výhledem, v dobré, klidné lokalitě (v bezprostředním okolí pouze rezidenční nemovitosti, žádný průmysl, žádná rušná ulice), kdy město i příroda je v dosahu pak tato nabídka je určena právě pro Vás. Kdykoliv mě kontaktujte, budu se na Vás těšit při osobní prohlídce. <a href="https://www.eurobydleni.cz/pozemky/stavebni-pozemek-bydleni/kladno/obec-velvary/prodej/"><strong>Prodej stavebního pozemku Velvary</strong></a>
Moderní a nadstandardně zrekonstruovaný byt 3+kk (66 m2)
Představuji prodej moderního a zcela zrekonstruovaného bytu 3+kk o výměře 66 m2, který se nachází ve 2. patře bytového domu v osobním vlastnictví.…
Prodej luxusního bytu 3+kk v Liberci, ul. Uralská
Nabízíme vám unikátní luxusní byt po celkové rekonstrukci na okraji centra Liberce. Byt se nachází v posledním, 6 NP bytového domu, který je je…
Prodej bytu 3+kk Liberec na Eurobydleni.cz