Makléř: Nachtnebl Aleš
Telefon: 602 831 ...
E-mail: nachtne ...
Zobrazit celý kontaktTelefon: 602 831 345
E-mail: nachtnebl@hcnreality.cz
Nemovitost nabízí
RK Hrabák & Cerman & Nachtnebl
Palackého 71/73, 466 04 Jablonec nad Nisou
Zobrazit kontakt na RK602 831 345
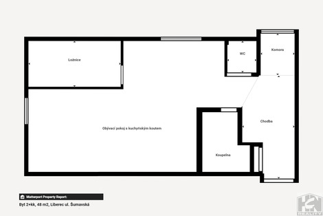
Exkluzivně nabízíme ke koupi slunný družstevní byt 2+kk o výměře 48 m² v Liberci, ul. Šumavská. Byt se nachází ve 2. patře cihlového domu bez výtahu v klidné části města, přesto v pěším dosahu centra OC Forum, Fügnerova i Babylon máte doslova na dosah ruky. Lokalita nabízí ideální kombinaci dostupnosti a klidu, bez rušivých vlivů z rychlostní komunikace. Byt prošel kompletní rekonstrukcí a je připraven k okamžitému užívání. Byly provedeny nové rozvody elektroinstalace, vody i odpadů, instalován vlastní plynový kotel a nové radiátory. Díky cihlové konstrukci je byt příjemně tepelně stabilní po celý rok a zároveň nabízí nízké provozní náklady. K bytu náleží sklep a prostorná půdní kóje o velikosti cca 14 m². K dispozici je společná zahrada, připojení k internetu i společná televizní anténa. Parkování je možné přímo před domem. Dům prošel rekonstrukcí v roce 2003 (zateplení, fasáda, střecha, okna i rozvody). Měsíční náklady včetně fondu oprav činí 3.089 Kč + energie (elektřina a plyn). Družstevní vlastnictví představuje výhodu v podobě nižších nákladů a administrativně jednoduchého převodu. Stylové bydlení, klid i centrum v jednom. Doporučujeme osobní prohlídku. <a href="https://www.eurobydleni.cz/domy/rodinny-dum/klatovy/obec-cachrov/prodej/"><strong>Prodej rodinného domu Čachrov</strong></a>
Prodej novostavby bytu 2+kk Zahrada Gallas v Liberci-Františkově
Výhradně Vám nabízíme ke koupi moderně zařízený byt 2+kk o velikosti 56,4 m2 (podlahová plocha bytu je 48,9 m2 + 7,5 m2 lodžie) v novostavbě bytového…
Prodej, Byt 2+kk, Liberec
Prodej bytové jednotky s parkováním v novostavbě projektu Zahrada Gallas, II. etapa, byt ihned k předání po kolaudaci, včetně připravené kuchyňské…
Prodej bytu 2+kk Liberec na Eurobydleni.cz