Aktuálně můžete v lokalitě Liberec vybírat z nabídky 120 bytů.
Přehled nemovitostí: pronájem byty > 1+1 Zpět na přehled nabídek

Mimořádná nabídka pronájmu bytu 1+1, 61 m2 + 4 m2 sklepní kóje + pakovací místo , Jablonec nad Nisou

neuvedeno

neuvedeno

osobní

G - Mimořádně nehospodárná

4846

23.04.2026

Cena: 14500 CZK / objekt / měsíc

Poslat dotaz k nabídce
Zásady používání osobních údajů

Prodejce

Makléř: Kůrková Monika

Telefon: 608 369 ...

E-mail: reality ...

Zobrazit celý kontakt

Nemovitost nabízí

Monika Kůrková

El. Krásnohorské 5633, Chomutov

Zobrazit kontakt na RK

Zobrazit všechny nabídky RK

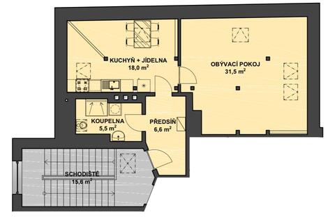
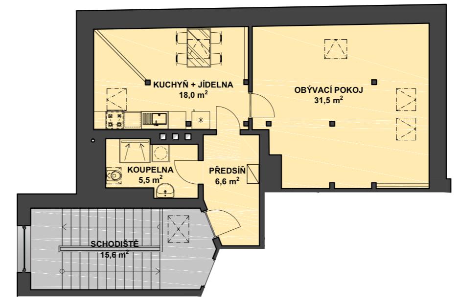
. Mimořádná nabídka pronájmu komfortního bytu 1+1, 59 m2 + sklepní kóje 4 m2 a parkovací místo na uzavřeném pozemku s bránou na dálkové ovládání, v nově zrekonstruovaném Villa domě v klidném centru Jablonce u parku u jabloneckého divadla. K dlouhodobému pronájmu nabízíme velký komfortní byt 1+1 ve 2.patře podkroví kompletně zrekonstruovaného Villa domu, kulturní památky. Byt je v osobním vlastnictví, nově vybudovaný v rámci citlivé rekonstrukce. Bez jakýchkoli dalších potřebných investic. Byt má krásnou atmosféru. Dům je bez výtahu. Dispozice bytu: vstupní předsíň, velký pokoj, pokoj s kuchyňskou linkou, koupelna se sprchovým koutem, umyvadlem a WC. Byt je nabízen jako nezařízený, avšak s novým základním vybavením: kuchyňská linka, myčka, el. trouba, indukční varná deska, digestoř, lednice s mrazákem, úsporný kondenzační kotel Standard bytu zahrnuje nové vinylové podlahy, nová úsporná střešní okna Velux s trojskly a technické zázemí odpovídající současným nárokům na komfortní bydlení. Parkování vlastního automobilu je možné na oploceném uzavřeném pozemku, s automatickou bránou na dálkové ovládání. Lokalita nabízí kompletní občanskou vybavenost v bezprostřední blízkosti MHD, obchody, služby v samém centru města. Podmínky pronájmu: Nájemné: 14 500 Kč/měsíc Služby: 1 000 Kč / osoba Elektrická energie a plyn budou přepsány na nájemce Vratná kauce: 25 000 Kč Provize RK: výše jednoho nájemného K nastěhování ihned. Orientační spotřeby, odhad: plyn cca 2.000 Kč/měs.: na plyn topení a teplá voda nový kondenzační kotel - úspornější než běžné kotle, nová okna jsou úsporná - izolační trojskla, dům má všude nové podlahy i stropy = nové podhledy, mají zvukovou a tepelnou izolaci (stropy jsou po rekonstrukci snížené, nově udělané podhledy se zvukovou a tepelnou izolací) elektřina cca 1.500 Kč /měs.: na elektřinu kuchyň = vaření, pečení, lednice, myčka, pračka, sušička / jinak VŠECHNA světla jsou LED žárovky = spotřeba mizivá, velmi úsporné (včetně chodby, společných prostor, sklepů) Upřednostňujeme dlouhodobé bydlení, bez domácích zvířat. Byt a dům je nekuřácký. Prohlídky pro vážné zájemce jsou možné po předchozí dohodě. Další informace poskytne realitní kancelář. <a href="https://www.eurobydleni.cz/byty/2_kk/jablonec-nad-nisou/obec-jenisovice/prodej/"><strong>Prodej bytu 2+kk Jenišovice</strong></a>




Pronájem bytu 1+1 Jablonec nad Nisou na Eurobydleni.cz


Nahoru