Makléř: Toman Ladislav
Telefon: 721 704 ...
E-mail: info@li ...
Zobrazit celý kontaktTelefon: 721 704 721
E-mail: info@librea.cz
Nemovitost nabízí
LIBREA
Zeyerova 560/25, Liberec - Staré Město
Zobrazit kontakt na RK
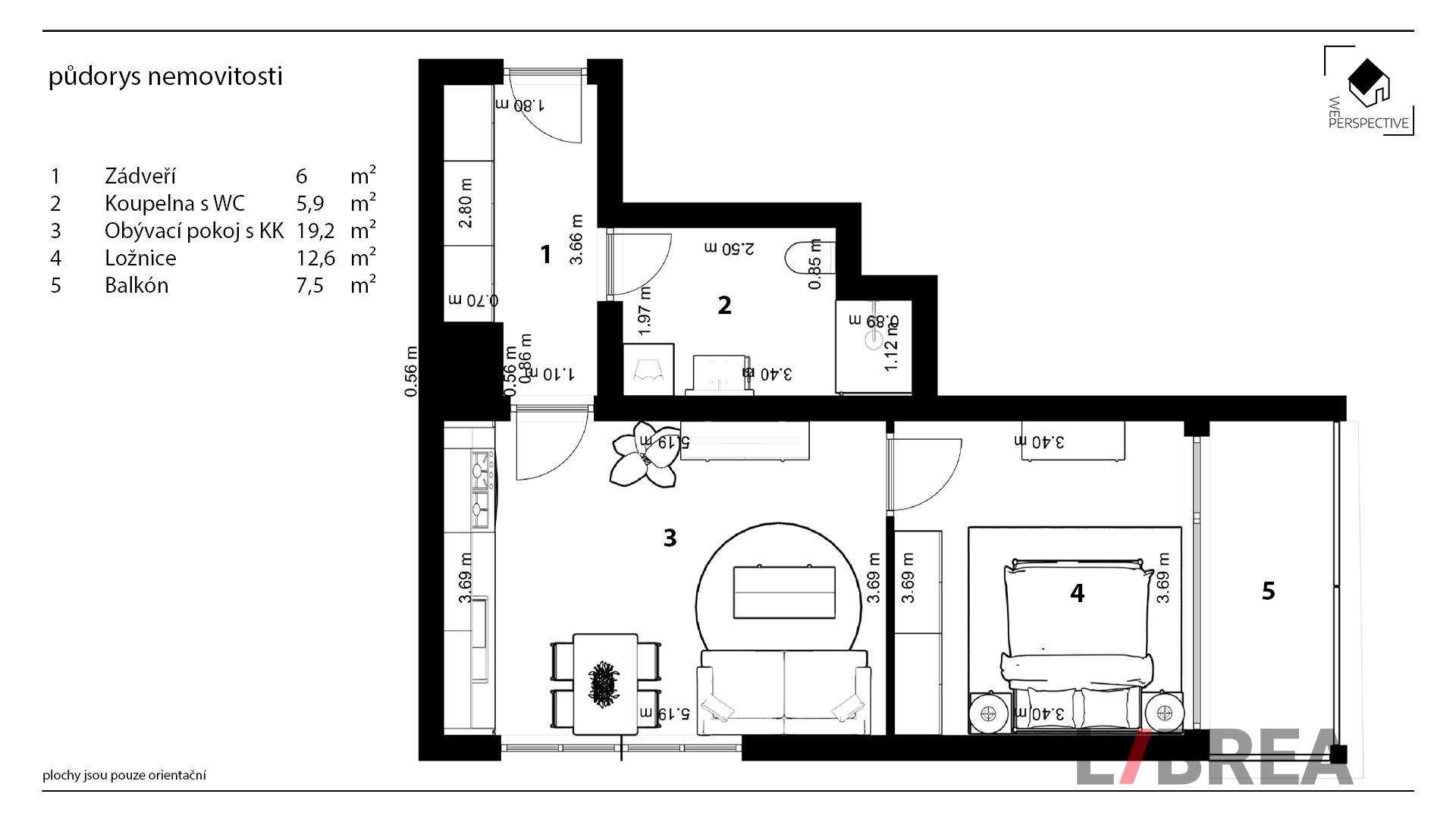
Nabízíme k podnájmu moderní vybavený bezbariérový byt 2+kk o výměře 51 m2 ve 4.NP novostavby bytového domu Zahrada Gallas v Liberci, ulice Švermova 421 s nerušeným výhledem na centrum města. Byt je prostorný a světlý, vybavený novou kuchyňskou linkou a nábytkem, připravený pro okamžité nastěhování. Vybavení je možné dle dohody s Vámi v bytě ponechat (viz fotodokumentace). Součástí bytu je velkorysá lodžie. Vytápění bytu je ústřední dálkové. V bytě je zaveden internet. V koupelně je příprava na pračku. K bytu patří i praktický sklep o velikosti 3,7 m2. Dům má k dispozici výtah a společnou kočárkárnu. Vyhrazené parkovací místo je zajištěno vedle domu. V okolí domu je kompletní občanská vybavenost: obchody, škola, školka, zdravotní středisko, zastávka tramvaje i autobusu v dosahu 5 minut. Bytový dům je blízko centra města i napojení na dálnici na Prahu. Výměra místností: Chodba = 6 m2 Koupelna s WC = 5,9 m2 Obývací pokoj s KK = 19,2 m2 Ložnice = 12,6 m2 Lodžie = 7,5 m2 Sklepní kóje = 3,7 m2 Vybavení bytu: Obývací pokoj: Nová kuchyňská linka včetně spotřebičů (vestavná lednice, indukční deska, el. trouba, myčka nádobí, mikrovlnka). Jídelní stůl + židle. Komoda. Ložnice: Vestavné skříně. Komoda. Dvojpostel s nočními stolky. Chodba: Vestavné skříně. Regulovatelná LED svítidla ve všech místnostech. Žaluzie ve všech oknech. Volné IHNED. Podnájemné: 17.500 Kč + 1x kauce Zálohy na služby ve výši 5.500Kč, zahrnují kompletní služby: Elektřina. Vytápění. Teplá a studená voda. Rychlý internet. Pojištění domácnosti a odpovědnosti za škodu. Úklid společných částí domu. V případě Vašeho zájmu nám neváhejte zavolat. <a href="https://www.eurobydleni.cz/komercni-nemovitosti/kancelar/praha-10/obec-petrovice/prodej/"><strong>Prodej kanceláře Praha 10, Petrovice</strong></a>
Pronájem, Byt 2+kk, Liberec
Pronájem jednotky o dispozici 2+kk v rezidenční budově blízko centra Liberce, ul. Londýnská. Ve výhradním zastoupení klienta nabízíme podnájem…
Pronájem, Byt 2+kk, Liberec
PRONÁJEM - PRVNÍ NÁJEMCE - BEZ PROVIZE Zcela nový nadstandardní byt 2+kk (60 m2) s balkonem - Liberec, Zahrady Gallas Hledáte moderní, zcela nový a…
Pronájem bytu 2+kk Liberec na Eurobydleni.cz